Your Guide to Getting Outsourcing Right the First Time

Have you ever faced the challenge of miscommunication during a construction project, leading to costly delays and rework? This highlights a common pain point in the architecture and construction industry: the critical need for precise and detailed architectural drawings. These drawings are not just technical documents; they are the foundation upon which successful projects are built, ensuring that every stakeholder, from architects to builders, is on the same page.
Architectural drawing is the linchpin that holds the entire design and construction process together. It transforms abstract concepts into concrete plans, providing a clear and detailed roadmap for all phases of construction. Whether it’s an architectural floor plan outlining the spatial arrangement of a building, a construction drawing detailing the technical aspects, or a 3D rendering bringing the design to life, each type of drawing plays a pivotal role in achieving project success. This blog delves into the importance of architectural drawing, exploring its various types, benefits, and the advanced techniques that are shaping the future of architectural design. By understanding and utilising these drawings effectively, architecture firms can enhance precision, efficiency, and collaboration in their projects.
Architectural drawings are indispensable tools that bridge the gap between visionary designs and tangible structures. They ensure accuracy, streamline communication, and facilitate smoother project execution. In this comprehensive guide, we will explore the essence of architectural drawing, its components, and its significant impact on both the design and construction phases. Furthermore, we will highlight how modern tools and practices are revolutionising this age-old discipline, helping architects deliver more innovative and precise designs. Join us as we uncover the indispensable role of architectural drawing in creating the built environments of tomorrow.
Architectural drawing is a technical representation of a building that visually communicates the design intent, spatial relationships, and detailed specifications of the structure. These drawings encompass various types of plans, elevations, sections, and detailed views that guide the construction process. Technical architectural drawing is essential for translating complex architectural ideas into a comprehensible and executable format.
The primary purpose of architectural drawing is to convey the architect’s vision in a clear and detailed manner. This includes creating accurate architectural design plans that outline every aspect of the project, from the overall layout to specific construction details. Understanding technical architectural drawings is crucial for ensuring that the design is feasible, functional, and meets all regulatory requirements.
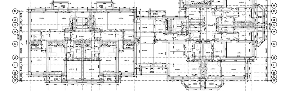
An architectural floor plan is a scaled diagram that provides a bird’s-eye view of a building’s layout. It represents the arrangement of rooms, spaces, and physical features at a particular level of the structure. Architectural floor plans are crucial in the design process as they convey the spatial relationships and dimensions of different areas within a building. These plans serve as a primary communication tool between architects, builders, and clients, ensuring everyone involved has a clear understanding of the project’s scope and layout. The benefits of architectural floor plans include enhanced planning and coordination, improved space utilisation, and the ability to foresee and address potential issues before construction begins.
Architectural floor plans are indispensable in the construction and design industry. Detailed floor plans provide a comprehensive view of the building’s layout, facilitating accurate and efficient construction. They help in visualising the spatial arrangement and flow of the structure, enabling architects and designers to make informed decisions about design elements and functionality. The benefits of architectural floor plans extend to ensuring compliance with building codes and regulations, aiding in the precise estimation of materials and costs, and enhancing communication among stakeholders. Ultimately, well-drafted floor plans contribute to the overall success of a construction project by minimising errors and ensuring a smooth execution process.
Elevations are essential components of architectural illustrations that depict the exterior or interior vertical surfaces of a building. These drawings provide a detailed view of the façade, showcasing the height, design, and appearance of each side of the structure. Elevations play a crucial role in architectural drawings by offering insights into the building’s aesthetic appeal and structural integrity. They help in visualising the finished appearance of the building and guide the construction team in achieving the desired look. The impact of precise architectural drawings on construction quality is significant, as accurate elevations ensure that the design intent is faithfully translated into reality, maintaining consistency and quality throughout the construction process.
Sections are another vital element of architectural blueprints, providing a cross-sectional view of a building. These drawings slice through the structure to reveal internal features, including the relationships between different floors, walls, and structural components. Sections are crucial for understanding the vertical arrangement and construction details that are not visible in floor plans or elevations. They offer valuable insights into the building’s construction techniques, material specifications, and compliance with safety standards. By highlighting the intricacies of the building’s internal structure, sections ensure that the construction process adheres to the design specifications, ultimately contributing to the overall integrity and functionality of the building.

Detailed drawings provide in-depth information about specific components and assemblies within a building. These include construction drawings that outline precise measurements, materials, and construction methods required for each element. Creating effective architectural design plans involves producing detailed drawings that leave no room for ambiguity, ensuring that the construction team has a clear guide to follow.
Construction drawings are indispensable in the building process, serving as the primary reference for contractors and builders. They include all necessary details, such as dimensions, materials, and construction techniques, to accurately execute the design. The role of construction drawings in building projects is to ensure that every aspect of the design is implemented correctly, maintaining the architect’s vision while adhering to safety and quality standards.
Architectural illustrations play a crucial role in the early stages of design by helping architects and clients visualise the conceptual ideas. These illustrations include sketches, renderings, and diagrams that convey the design intent and explore different possibilities. The significance of architectural illustration in design lies in its ability to communicate abstract concepts and facilitate collaborative decision-making.
Developing thorough architectural design plans is a meticulous process that involves detailed analysis, creativity, and technical expertise. These plans encompass all aspects of the project, from initial sketches to final construction drawings. Creating effective architectural design plans requires careful consideration of functionality, aesthetics, and compliance with building codes, ensuring that the design is both beautiful and practical.
Construction drawings are vital documents in any building project, serving as the blueprint for translating an architect’s vision into a physical structure. These detailed drawings provide comprehensive instructions and specifications for the construction team, including dimensions, materials, and techniques. The role of construction drawings in building projects is multifaceted; they ensure that every aspect of the design is accurately represented and adhered to during construction. By offering precise details about the placement and connection of components, construction drawings help avoid misunderstandings and errors on site. They also facilitate communication among architects, engineers, contractors, and other stakeholders, ensuring everyone is aligned with the project’s objectives and requirements.
Architectural blueprints are fundamental to the construction process, providing a detailed and scaled representation of the building’s design. These blueprints act as a guide for the construction team, outlining the specific requirements for each phase of the project. The importance of architectural blueprints lies in their ability to translate complex design concepts into actionable steps, ensuring that the construction aligns with the architect’s vision. How architectural blueprints aid construction is by offering a clear roadmap that details the dimensions, materials, and construction techniques to be used. This level of detail helps in planning and scheduling tasks, ordering materials, and allocating resources efficiently. Additionally, architectural blueprints play a crucial role in maintaining quality control and ensuring compliance with building codes and regulations. By providing a visual representation of the design, they help identify potential issues early in the process, allowing for adjustments before construction begins. This proactive approach minimises delays and cost overruns, ultimately contributing to the successful completion of the project.

The adoption of 3D architectural renderings has revolutionised the field of architectural drawing, providing numerous benefits over traditional 2D drawings. One of the primary advantages of 3D architectural renderings is their ability to offer a realistic and immersive visualisation of the proposed structure. These renderings allow architects, clients, and stakeholders to explore the design in a three-dimensional space, enhancing their understanding of the project. This realistic portrayal helps in identifying potential design flaws and making necessary adjustments early in the process, saving time and reducing costs. Furthermore, 3D architectural renderings improve communication between architects and clients by providing a clear and tangible representation of the design, making it easier to convey ideas and concepts. They also facilitate better marketing and presentation efforts, as these detailed visuals can be used in promotional materials to attract investors and clients.
Advancements in technology have revolutionised the field of architectural drawing, introducing powerful tools and software that enhance precision and efficiency. Modern tools for architectural drawing include CAD software, BIM (Building Information Modelling), and virtual reality applications. The best practices for architectural drawing in design include the integration of these modern tools to enhance accuracy, efficiency, and collaboration. By leveraging advanced software and technologies, architects can produce high-quality drawings that meet the demands of contemporary construction projects.
Ensuring accuracy and detail in architectural design plans is critical for the success of any construction project. Adhering to best practices for architectural drawing in design involves several key strategies. Firstly, using advanced software tools like CAD and BIM can significantly enhance precision and efficiency. These tools allow for detailed and accurate drawings, reducing the likelihood of errors. Secondly, maintaining consistent standards and conventions throughout the drawing process is essential. This includes using standardised symbols, notations, and scales to ensure clarity and uniformity. Thirdly, regular reviews and quality checks should be integrated into the workflow to catch and correct mistakes early. Additionally, detailed documentation of all design changes and decisions helps in maintaining a clear and traceable record, which is crucial for accountability and future reference. Incorporating these best practices ensures that architectural design plans are not only accurate but also comprehensive and reliable.
Collaboration between architects and engineers is vital for creating accurate and detailed architectural design plans. This interdisciplinary approach ensures that all aspects of the building, from aesthetics to structural integrity, are thoroughly considered and integrated into the design. Effective collaboration facilitates the sharing of expertise and insights, leading to more innovative and practical solutions. It also helps in identifying potential issues early in the design process, allowing for timely adjustments and refinements. Regular communication and coordination between architects and engineers ensure that the design aligns with technical requirements and construction capabilities. This collaborative effort results in more cohesive and functional architectural design plans, ultimately contributing to the successful execution of the project. By fostering a collaborative environment, architects and engineers can achieve a higher level of accuracy and detail in their drawings, ensuring that the final construction meets the desired standards and specifications.
The future of architectural drawing is being shaped by emerging technologies that enhance visualisation, precision, and collaboration. These technologies include augmented reality (AR), virtual reality (VR), and AI-powered design tools. The significance of architectural illustration in design will continue to grow as these technologies become more integrated into the architectural workflow, providing new ways to explore and present design concepts.
3D architectural renderings are set to become even more advanced, with developments in real-time rendering, photorealistic visuals, and immersive VR experiences. These advancements will further enhance the ability of architects to communicate their designs and engage clients. The future trends in modernism architecture and the advantages of 3D architectural renderings will drive innovation, enabling more sustainable, efficient, and visually compelling designs.
Architectural drawing is the cornerstone of successful architectural and construction projects. From the initial concept to the final build, precise and detailed drawings ensure that the design is accurately realised, reducing the risk of errors and enhancing collaboration among all stakeholders. As technology continues to evolve, the role of architectural drawing will become even more pivotal, driving innovation and improving the quality of the built environment. By embracing the latest tools and best practices, architects can create more effective, efficient, and sustainable designs, ensuring the continued relevance and impact of architectural drawing in the future.
To learn more about how Away Digital’s professional services can assist with drafting, documentation, 3D modelling, and visualisation, visit ourarchitectural services.
The time required to create architectural drawings can vary significantly depending on the complexity and scale of the project. For a small residential project, such as a single-family home, it might take a few weeks to a couple of months to complete the drawings. This timeframe includes initial consultations, design development, revisions, and the finalization of plans. For larger and more complex projects, such as commercial buildings or multi-story residential complexes, the process can take several months or even over a year. The duration is influenced by factors such as the level of detail required, the number of revisions needed, the availability of the architect, and the efficiency of the collaboration between the architect, engineers, and other stakeholders. Additionally, regulatory approvals and compliance checks can also extend the timeframe.
The cost of architectural drawings is influenced by several factors. The complexity and size of the project play a significant role; more intricate designs and larger buildings require more detailed and extensive drawings, which increases the cost. The level of detail and precision required in the drawings also affects the price, as more detailed plans demand more time and expertise from the architect. The experience and reputation of the architect or architectural firm can impact costs as well, with more established professionals typically charging higher fees for their services. Geographic location is another factor, as architectural services can vary in cost depending on the region’s market conditions and cost of living. Additionally, the scope of services provided, such as site visits, project management, and coordination with other professionals, can also influence the overall cost. Finally, any revisions or changes requested by the client during the design process can add to the cost, especially if they require significant adjustments to the initial plans.
When hiring an architectural drawing service, it is essential to consider several key factors to ensure you receive high-quality and professional service. Firstly, review the architect’s portfolio to assess their experience and expertise in projects similar to yours. This will give you an idea of their design style and capabilities. Secondly, check their qualifications and credentials to ensure they are licensed and certified to practice in your area. Communication is crucial, so choose an architect who listens to your needs, understands your vision, and can effectively communicate their ideas. Additionally, consider their reputation and reviews from previous clients to gauge their reliability and professionalism. Discuss the scope of services they offer and ensure it aligns with your project requirements, including design development, construction drawings, and project management. It is also important to understand their fee structure and ensure it fits within your budget. Finally, ensure that the architect is familiar with local building codes and regulations, as compliance is critical for the successful completion of your project.
Project snapshot A 55+-storey residential tower in Australia requiring full DD and construction documentation. Away Digital supported the project from model development through to final façade detailing and coordinated service drawings. Project overview Location: AustraliaSector: Student accommodationDuration: 2 years 3 months Scope of work Project stage: Design development and construction drawing packagesScale: 55+-storey tower with […]
Sign up to receive a monthly email on the latest updates, features, and news!